




Луксозен комплекс с АКТ 16 и просторни апартаменти в кв. Бояна
€262,500 (€2,365/m2)
513,405.38 лв. (4,625.27 лв./m2)
| # | Тип | Площ | Цена | Статус |
|---|---|---|---|---|
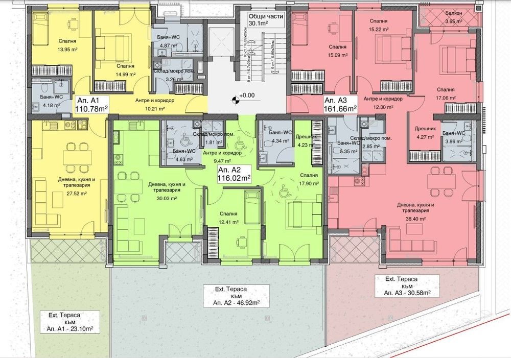
| А1 | Тристаен апартамент | 111 m2 | €262,500 | Свободен |
| A2 | Тристаен апартамент | 116 m2 | €282,500 | Продаден |
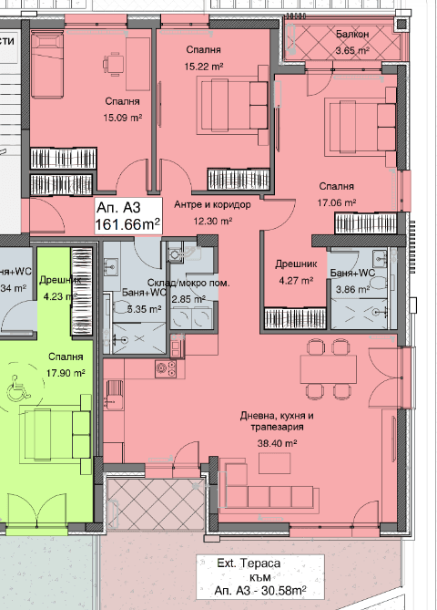
| A3 | Четиристаен апартамент | 162 m2 | €390,000 | Свободен |
| # | Тип | Площ | Цена | Статус |
|---|---|---|---|---|
| А4 | Тристаен апартамент | 121 m2 | €292,500 | Продаден |
| # | Тип | Площ | Цена | Статус |
|---|---|---|---|---|
| В3 | Тристаен апартамент | 118 m2 | €275,500 | Свободен |
| B1 | Тристаен апартамент | 138 m2 | €342,500 | Свободен |
| # | Тип | Площ | Цена | Статус |
|---|
| # | Тип | Площ | Цена | Статус |
|---|---|---|---|---|
| С4 | Четиристаен апартамент | 168 m2 | €392,500 | Свободен |
| # | Тип | Площ | Цена | Статус |
|---|---|---|---|---|
| C7 | 168 m2 | €412,500 | Продаден |
Архитектурен план



Видео презентация
РС ЕСТЕЙТС предлага за продажба
Апартаменти в Луксозен комплекс с наличен акт 16 в кв. Бояна с гледка към Витоша.
Локация:
Намира се в централната част на кв. "Бояна", комплекса има гледка както към града, така и към планина Витоша. Бърз достъп до ключови булеварди, като бул. "България", бул. "Околовръстен път".
Разпределение:
*В обявата е представен тристаен апартамент на наземен етаж с приложена схема на разпределение.
Комплекса е затворен с контролиран достъп, висок клас строителство с налични тристайни и четиристайни апартаменти, гаражи и паркоместа. Просторни и правилни разпределения и функционални сервизни помещения.
Наземните апартаменти, както и покривният апартамент, предлагат просторни тераси-тип двор, с гледка, има и възможност за изграждане на зелен кът с градина към наземните апартаменти.
Общи Части:
Стълбище, фоайе, етажни коридори – направени от естествен камък и алуминиеви лайсни.
Асансьори:
ThyssenKrupp, с качество отговарящо на реномето на марката.
Предимства на комплекса:
Подборът на материали е създаден съобразно и с отговорност към здравината, безопасността и високото качество. Отоплениетое на газ. Има прокарани разводки за Климатици
Жилищата се предлагат на шпакловка и замазка, което ви дава възможност да го персонализирате и декорирате според вашия вкус.
Обявената цена е с ДДС.
Оглед на имота:
Можем да организираме оглед на имота в удобно за Вас време. За целта, свържете се с отговорния за офертата брокер и му кажете кога бихте искали да направите оглед.
Резервация на имота:
Имотът може да бъде резервиран и свален от продажба със заплащане на депозит, след което се прекратява провеждането на огледи с други купувачи и започва подготовка на документите за сключване на предварителен и окончателен договор. Свържете се с отговорния брокер за този имот за подробна информация.
Финансиране на имота:
Агенцията си партнира с най-големия кредитен посредник в България и можем да ви съдействаме с преференциални условия за жилищно кредитиране.